Die Ferienwohnungen der „Kreativmühle“ in Mücheln, unweit des Geiseltalsees, sind Teil der Aufwertungsmaßnahmen der
historischen Wassermühle. Ausgangspunkt war ein Bestand mit starkem atmosphärischem Charakter, der erhalten bleiben
sollte – ohne auf zeitgemäßen Komfort und klare Nutzungsabläufe zu verzichten.
…
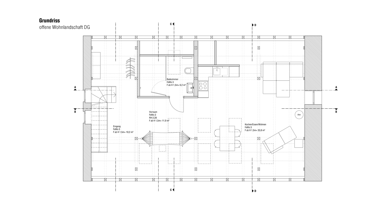
Im Dachgeschoss entstand ein besonderer Aufenthaltsraum unter dem historischen Dachstuhl. Ziel war es, den Bestand in seiner Materialität und räumlichen Wirkung weitgehend sichtbar zu lassen und notwendige Eingriffe präzise zu setzen. Der Raum wird als Loft gelesen: Lediglich das Badezimmer ist als eigenständiger Kubus eingestellt, während Küche, Essen und Wohnen fließend ineinander übergehen.
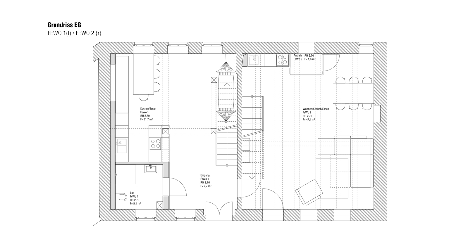
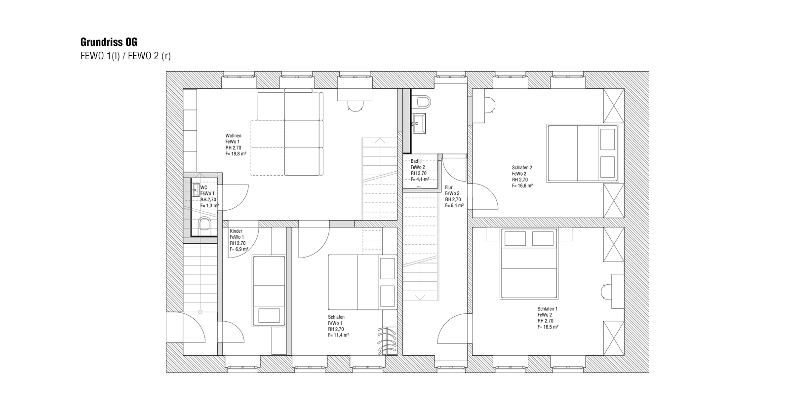
Zwei weitere Maisonette-Ferienwohnungen ergänzen das Angebot und verteilen sich jeweils über zwei Ebenen. Auch hier bleibt der Charakter der Mühle spürbar, wird jedoch durch zeitgemäße Elemente ergänzt. Die Gestaltung orientiert sich atmosphärisch an den übrigen Nutzungen des Hauses – dem Kreativzentrum und der Dachgeschosswohnung –, ohne diese zu kopieren.
Individuelle Details, darunter gezielt integrierte Fundstücke aus der Zeit vor der Restaurierung, schaffen eine subtile Verbindung zur Geschichte des Ortes. Sie lassen die Räume lebendig wirken und laden dazu ein, die Mühle nicht nur als Unterkunft, sondern als Kontext zu erleben – ruhig, klar und mit sichtbarem Bezug zum Bestand.
Sie möchten mehr über unsere Arbeitsweise erfahren oder haben bereits ein konkretes Projekt im Kopf? Kontaktieren Sie uns gerne – wir vereinbaren mit Ihnen einen unverbindlichen Ersttermin.