
Ein Träger für Erwachsenenbildung in Magdeburg bezieht eine zweite Etage und möchte diese sowohl strukturell als auch
gestalterisch komplett neu planen. Simpel gesagt handelt es sich hier um „einmal komplett entkernen und wieder neu
reinstellen“.
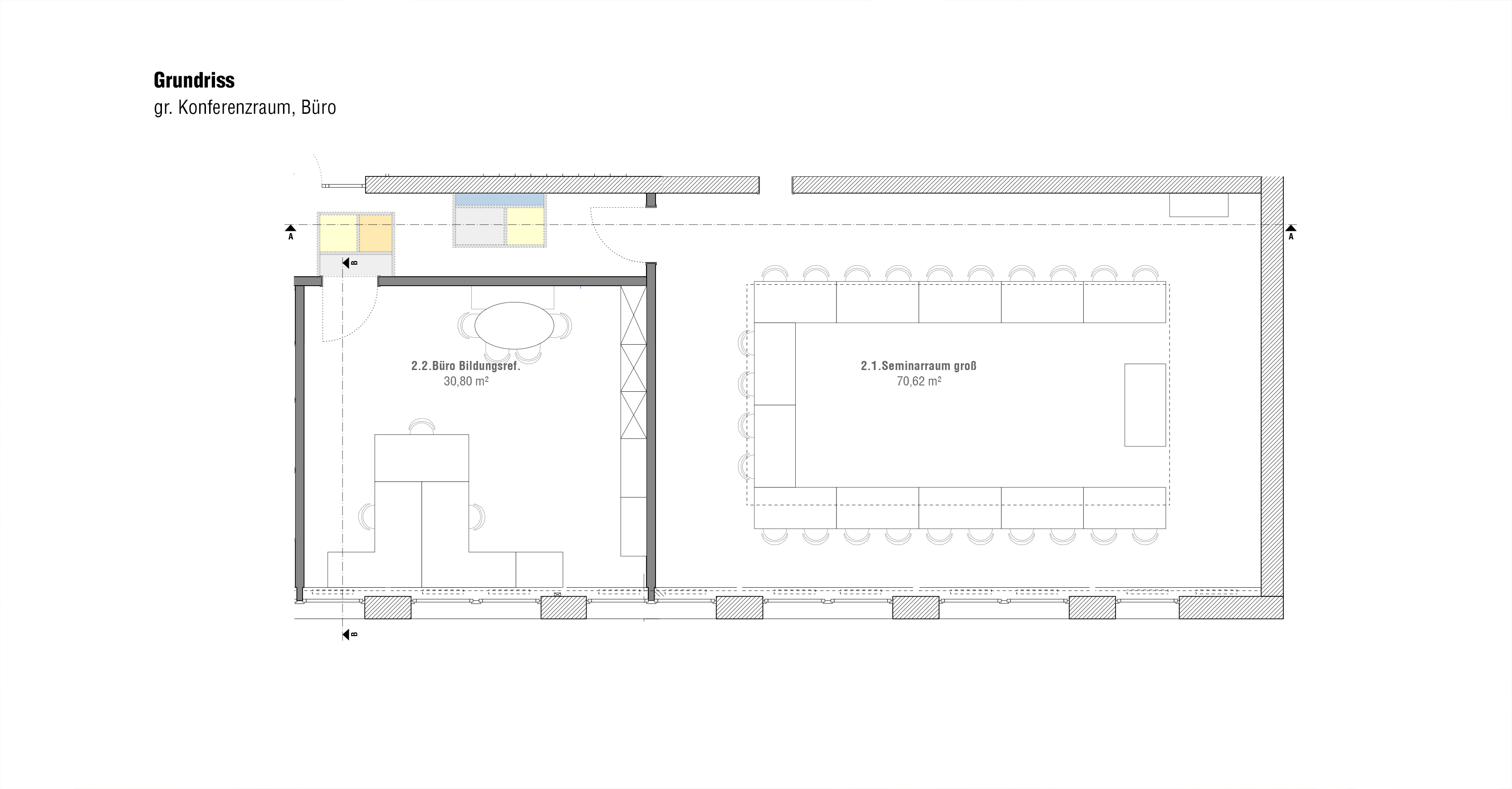
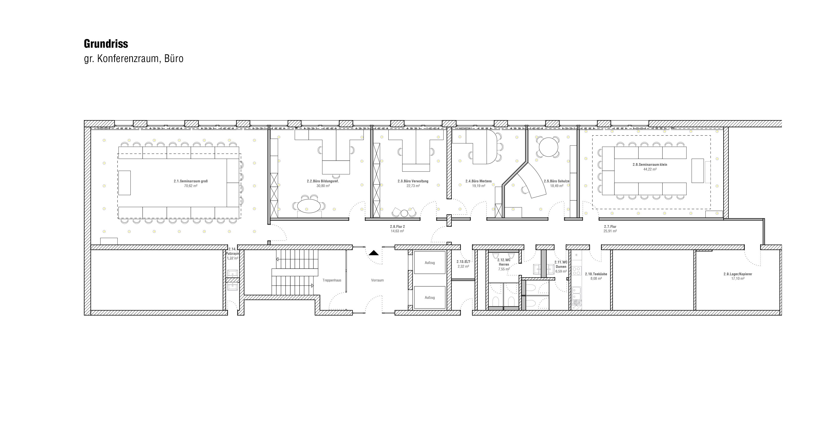
So wurden in der 300qm großen Etage bis auf eine Brandschutzwand zunächst alle Wände der früheren Büros entfernt und
zwei Seminarräume und vier unterschiedlich große Büros neu eingefügt. Auch die dienenden Räume wie Lager, Teeküche und
Toiletten blieben in Ihrer ursprünglichen Form erhalten, aber wurden renoviert. Die funktionale Neuordnung sollte für
eine bessere Verbindung der Mitarbeiter untereinander sorgen und gleichzeitig den ungestörten Seminarbetrieb
ermöglichen. …
| Zeitraum | 2019–2020 |
| Ort | Paritätisches Bildungswerk, Magdeburg |
| Nutzfläche | ca. 265 m² |
| Nutzergruppe | Büroetage, Konferenz-/Büroräume |
| Leistungsumfang | LPH1-3,5,8,9 |
| Schwerpunkte | Altbaubestand, flexible Raumnutzung, Konferenzräume |
| Ziel / Besonderheiten | Atmosphäre, Raumfluss, historische Einbindung |