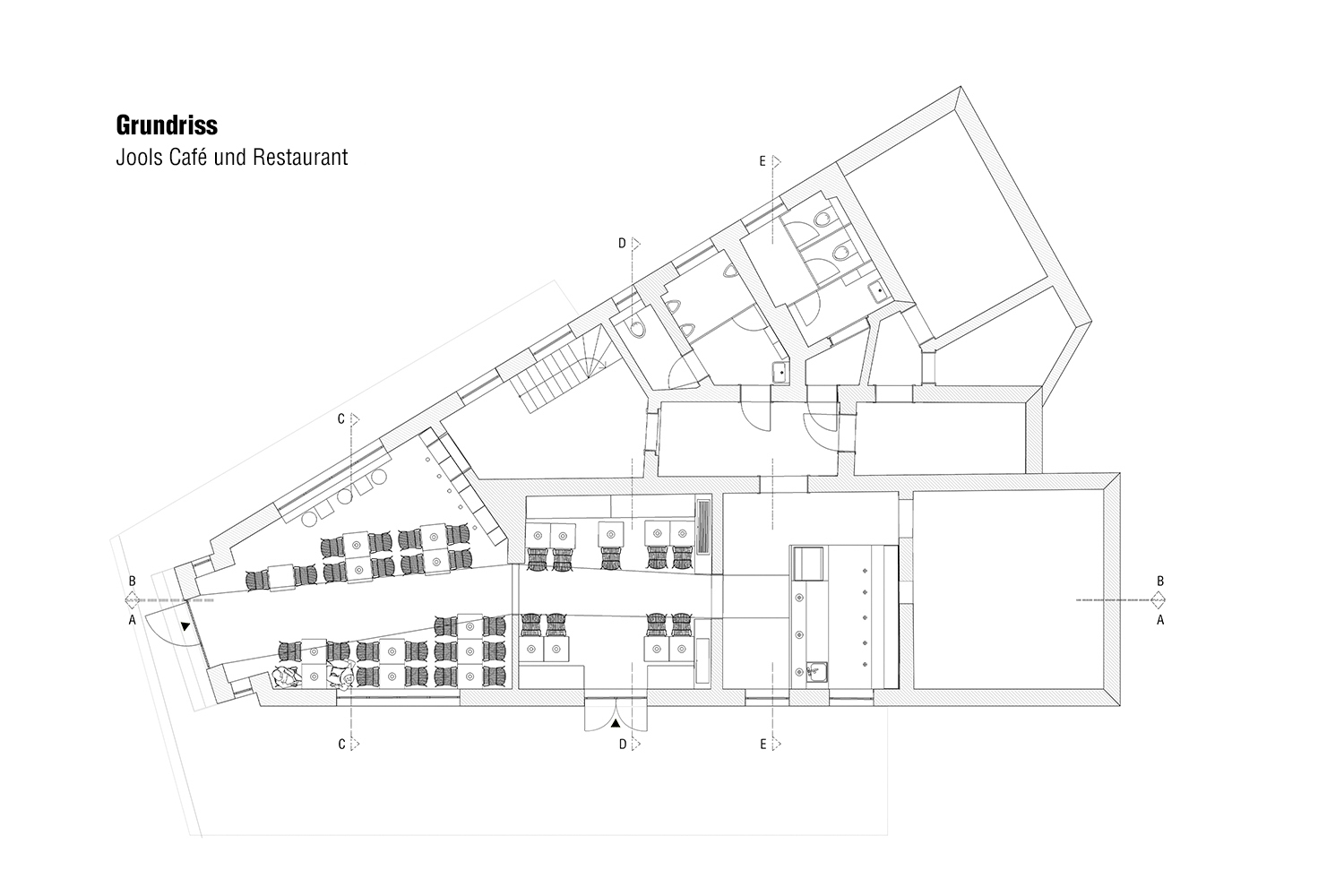
Das Café und Restaurant Jools befindet sich in einem historischen Eckhaus in Hamburg-Ottensen und erstreckt sich über
drei hintereinander liegende Räume. Die besondere Herausforderung lag in der Tiefenstaffelung des Grundrisses: Der
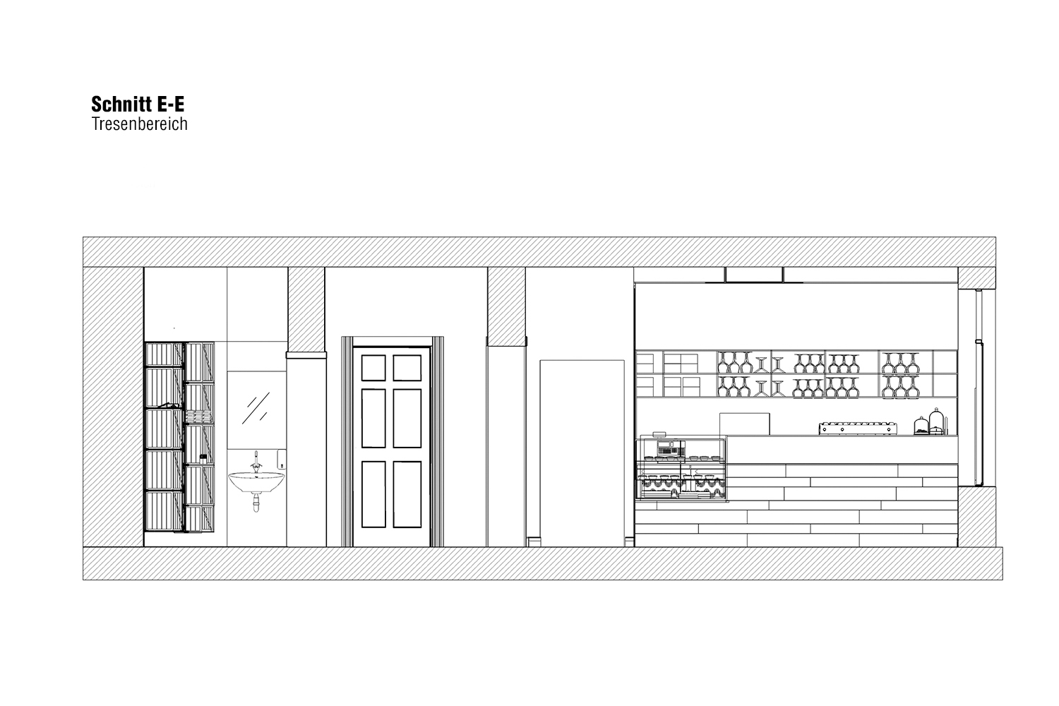
zentrale Tresen befindet sich im hintersten Raum und sollte dennoch als räumlicher Fokus bereits beim Betreten des
Lokals wahrnehmbar sein.
…
Ziel des Entwurfs war es, eine klare Orientierung durch den Raum zu schaffen und zugleich die Identität der jungen Gastronomie sichtbar zu machen. Der Tresen wurde als räumlicher Anziehungspunkt definiert, während die Abfolge der Räume bewusst als gestalterische Dramaturgie genutzt wurde.
Die Blickführung vom Eingang bis in den hinteren Gastraum wird durch ein beleuchtetes Deckenpaneel unterstützt, das sich mit seiner strahlend weißen Oberfläche deutlich von der ansonsten grau-beigen Wand- und Deckenfarbe absetzt. So entsteht eine klare visuelle Achse, die den Raum gliedert und den Tresen in den Mittelpunkt rückt.
Ein weiteres zentrales Element des Konzepts sind die wandgreifenden Regale im Gastraum und hinter dem Tresen. Im vorderen Raum ist eine großformatige „Erzeugerkiste“ in das Regal integriert, in der wöchentlich wechselnde Produkte präsentiert werden, die jeweils den kulinarischen Schwerpunkt dieser Zeit widerspiegeln.
Der Entwurf verbindet den vorhandenen Altbaubestand mit dem Einsatz unkonventioneller Materialien. Regale aus Eternit, Leuchten aus Keramikschaum und Oberflächen aus recyceltem Palettenholz setzen bewusste Akzente und verleihen dem Raum eine eigenständige, zeitgemäße Anmutung, ohne den Charakter des Bestands zu überlagern.
Sie möchten mehr über unsere Arbeitsweise erfahren oder haben bereits ein konkretes Projekt im Kopf? Kontaktieren Sie uns gerne – wir vereinbaren mit Ihnen einen unverbindlichen Ersttermin.