
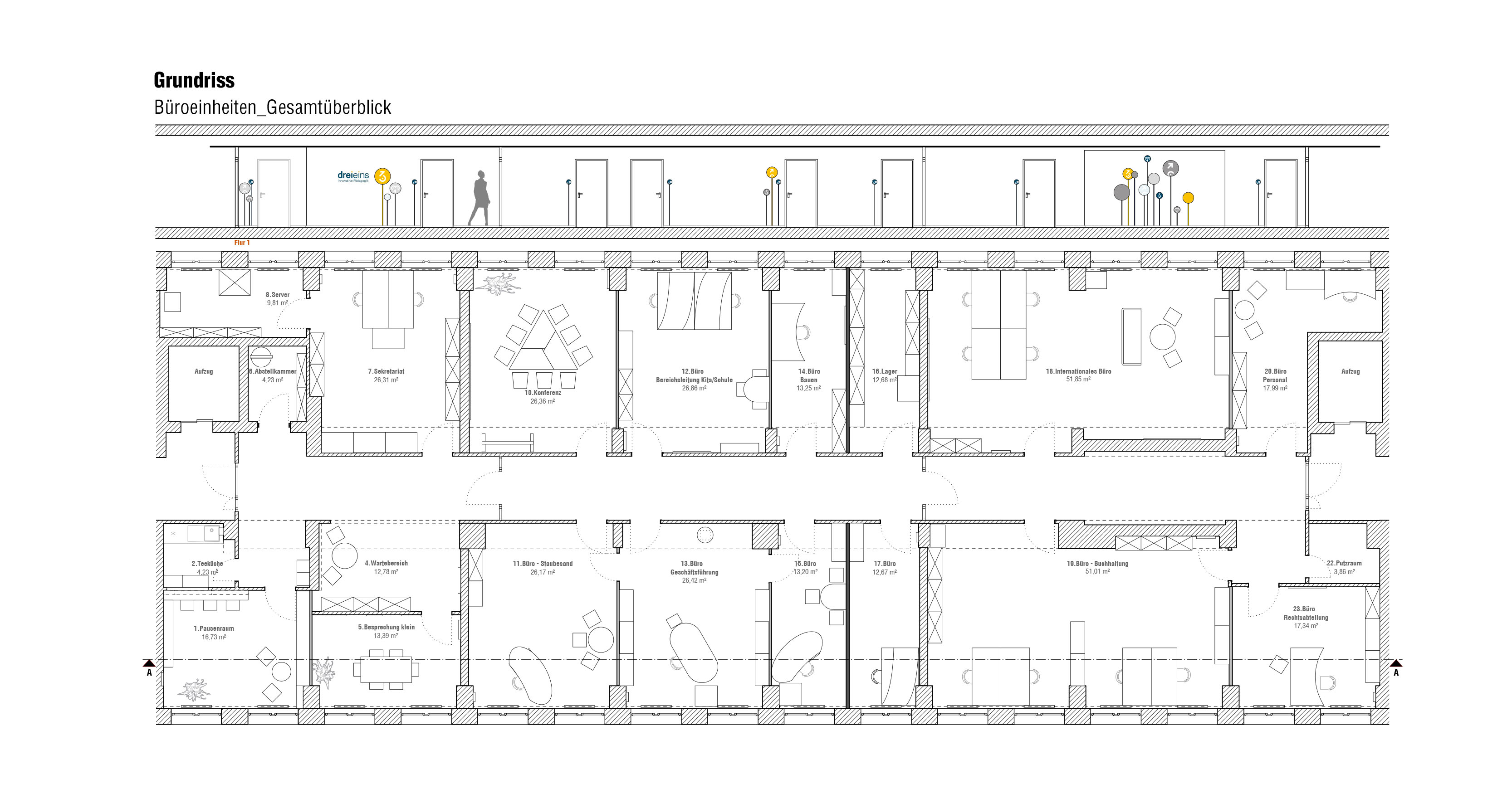
Die neuen Verwaltungsräume für einen privaten Bildungsträger in Berlin galt es zu gestalten und konform mit der
Arbeitsstättenrichtlinie zu möblieren.
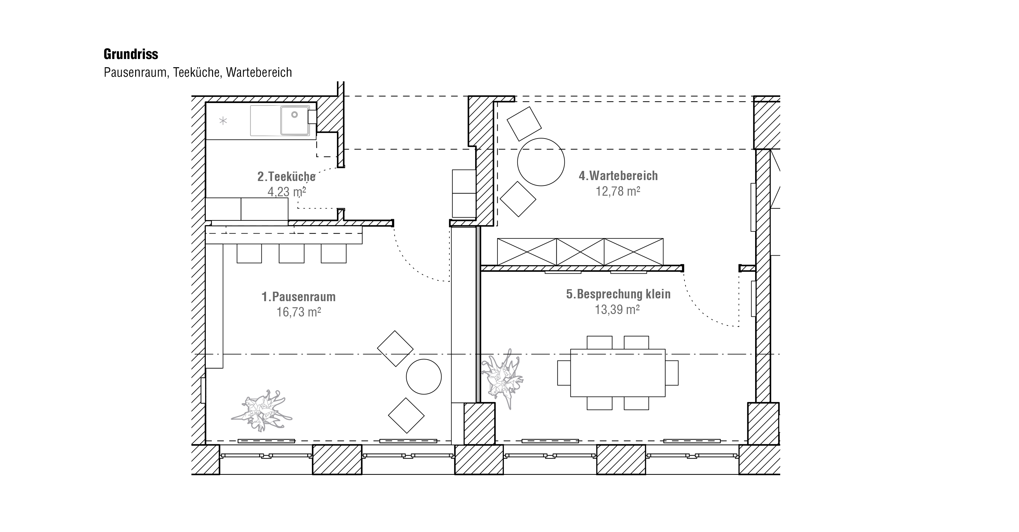
Neben kleineren baulichen Eingriffen, wie dem Teilen von zwei großen Büros in vier kleine, war uns strukturell besonders
wichtig die nur vier Quadratmeter große Teeküche ohne Fenster von Ihrem Außenseiterdasein zu befreien und in Einklang
mit dem angrenzenden Pausenraum zu bringen. Aus baulichen und platzbedingten Gründen, war eine komplette Öffnung des
Raumes nicht möglich, weswegen wir uns für einen großzügigen Durchbruch auf Tresenhöhe entschieden. …
| Zeitraum | 2019 |
| Ort | Bürogebäude, Berlin |
| Nutzfläche | ca. 436 m² |
| Nutzergruppe | Büro- und Aufenthaltsräume, Empfang |
| Leistungsumfang | LPH1-3,5 |
| Schwerpunkte | Büroflächen, CI-Konzept |
| Ziel / Besonderheiten | Atmosphäre, Raumfluss, historische Einbindung |