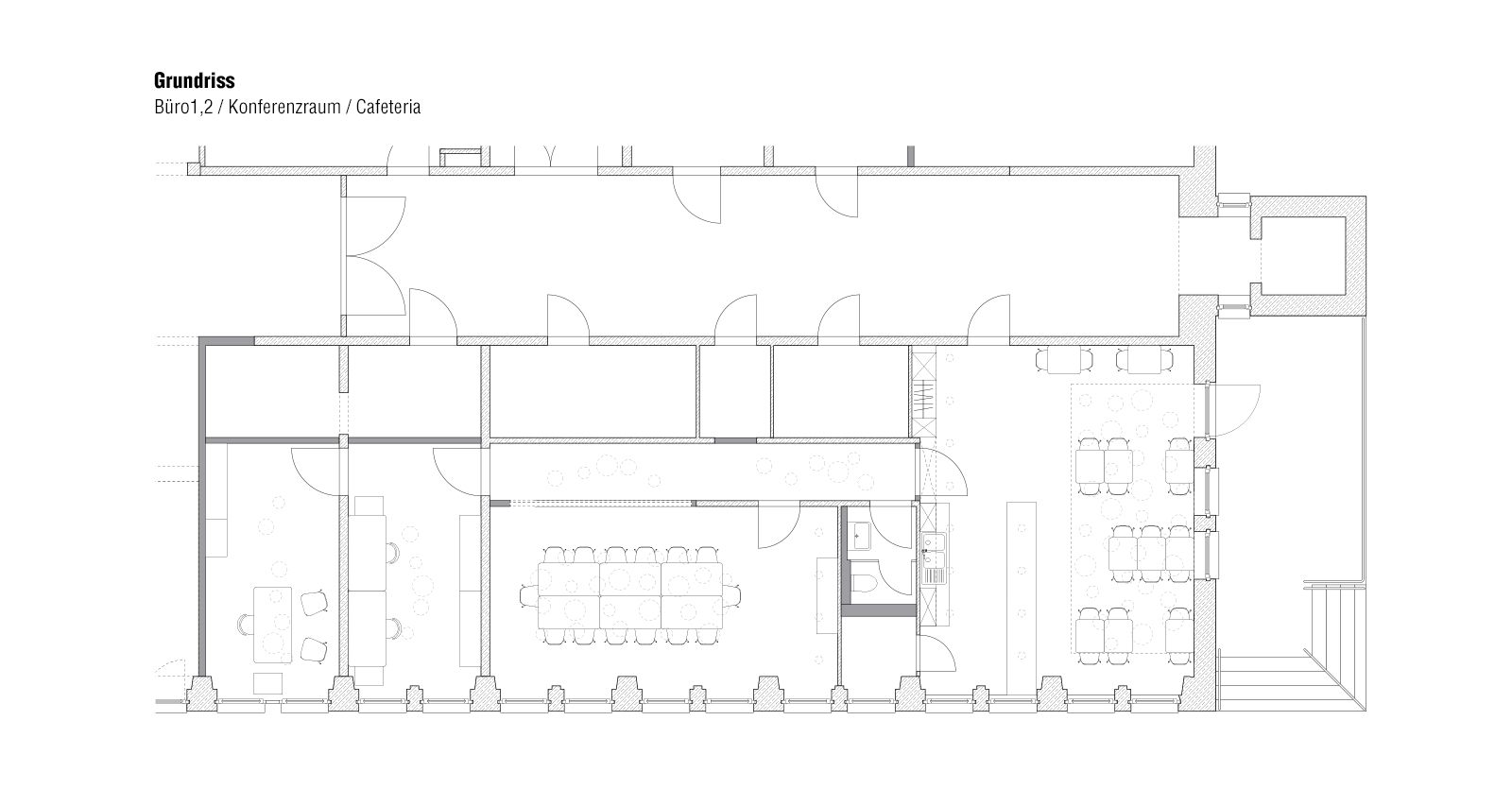
Im Zuge der Modernisierung der dreieins Grundschule in Berlin-Kaulsdorf wurde die ehemalige Hausmeisterwohnung zu einem Bildungszentrum umgebaut. Die räumlichen Voraussetzungen waren dabei geprägt von einem typischen Plattenbau der Zeit: niedrige Decken, robuste Materialien wie Beton und Terrazzo sowie eine insgesamt funktionale, wenig einladende Atmosphäre. …
Herzstück des neuen Bildungszentrums ist ein Café, das künftig als offener Begegnungsort für die Nachbarschaft dienen soll. Der Raum sollte bewusst niederschwellig gestaltet werden – zugänglich für Menschen jeden Alters, unterschiedlicher sozialer Hintergründe und Herkunft. Neben dem Café umfasst das Zentrum einen Seminarraum sowie zwei Büroräume.
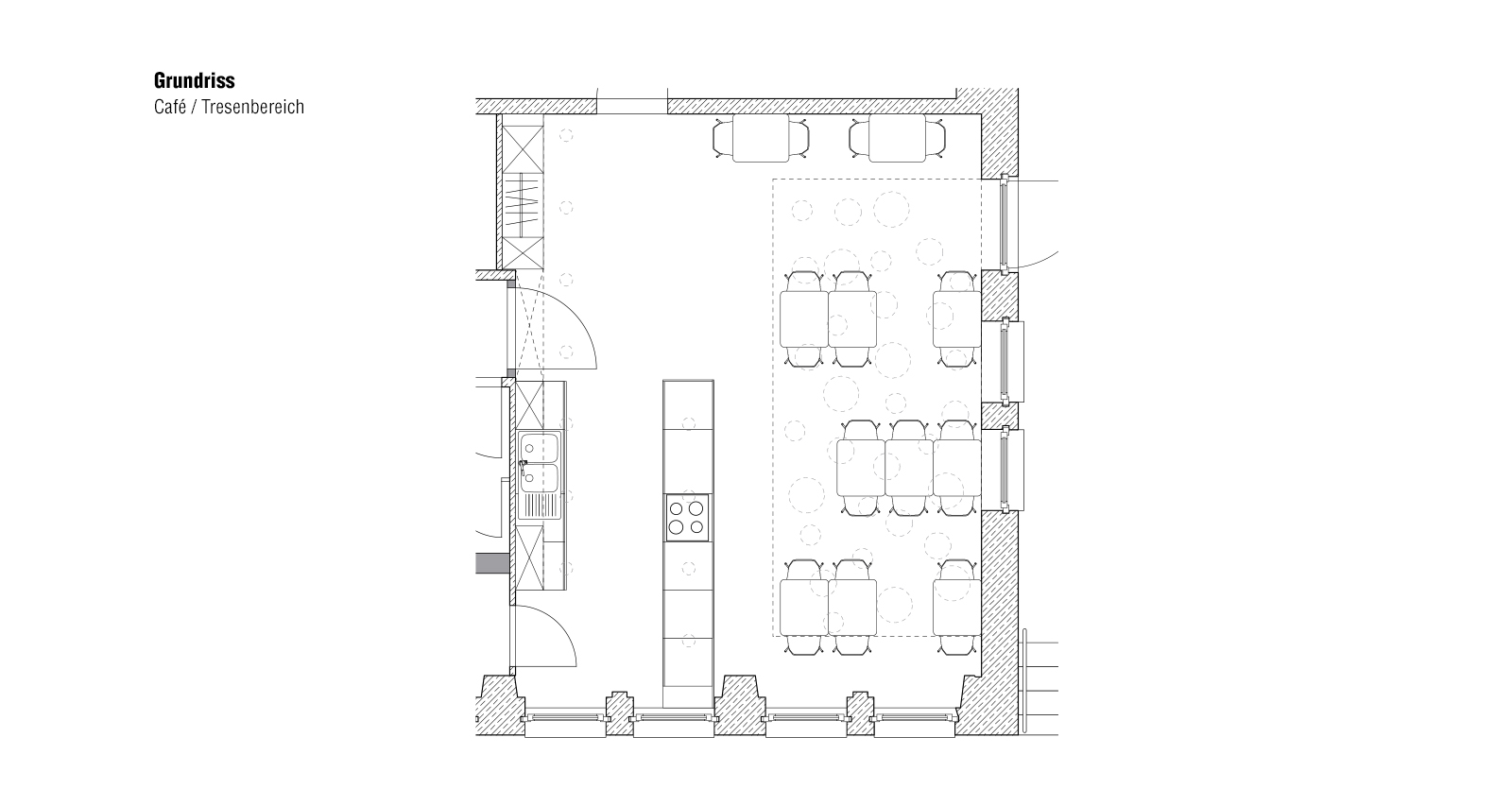
Ziel des Entwurfs war es, unter den gegebenen baulichen Rahmenbedingungen einen offenen, einladenden Ort zu schaffen, der vielfältige Nutzungen zulässt. Das Café sollte nicht nur klassische gastronomische Funktionen erfüllen, sondern auch Raum für kreative Aktivitäten, Gruppentreffen sowie gemeinsames Kochen und Backen mit Kita- und Schulkindern bieten.
Zentrales Gestaltungselement ist ein wandgreifendes Regalsystem, das aus unterschiedlich großen, scheinbar gestapelten Kisten besteht. Einzelne Fächer sind mit Fronten versehen, um Stauraum für kleinere Gegenstände zu schaffen. In das Regalsystem integriert ist eine Küchenzeile, die sich im gegenüberliegenden Tresen fortsetzt und den Raum funktional zusammenbindet.
Die Materialität verbindet robuste und wohnliche Elemente: Seekieferplatten treffen auf matte, anthrazitfarbene und weiße Fronten. Ein durchgehend verlegter grauer Linoleumboden, weiße Tische und hellblaue Sitzmöbel greifen die Corporate-Identity-Farben der bip gGmbH auf und sorgen für eine klare, freundliche Grundstimmung. Als gestalterischer Akzent ergänzt eine eigens für diesen Ort entwickelte Illustrationswand das Raumkonzept. Die Material- und Farbwelt wird in den angrenzenden Räumen fortgeführt.
Ergänzend dazu wurde ein Lichtkonzept entwickelt, das zugleich gestalterisches und funktionales Element ist. Unterschiedlich große Leuchtenschirme werden in ausgewählten Deckenbereichen abgehängt – etwa im Flur oder über dem Gastraum des Cafés. So entstehen Zonen mit eigener Atmosphäre, während die Lichtinstallation zugleich zur akustischen Verbesserung beiträgt. Mit einfachen Mitteln wird der Raum geöffnet, gegliedert und spürbar aufgewertet.
Sie möchten mehr über unsere Arbeitsweise erfahren oder haben bereits ein konkretes Projekt im Kopf? Kontaktieren Sie uns gerne – wir vereinbaren mit Ihnen einen unverbindlichen Ersttermin.